MENU
中
EN
關於國建
最新消息
公司簡介
公司組織
經典建案
經營理念
營運概況
投資事業
得獎紀事
房地產指數
公司治理
內部稽核
公益活動
霖園集團
60週年專區
熱銷建案
熱銷建案
年度總覽
購屋試算
國泰曦.
國泰蒔萃
國泰.悠然
國泰森林薈
國泰GRAND PARK
RiVER PARK店面
御博苑店面
國泰聚店面
國泰DoubleA店面
國泰O2店面
國泰頤河店面
客戶專區
建築工法
社區關懷
居家常識
聯絡我們
客戶會員專區
尊榮優惠
住戶報修專區
都市更新
都市更新消息
都市更新Q&A
都市更新專區
都更法令知識庫
與我們聯絡
企業永續
投資人專區
公司基本資料
財務資訊
重要公告
股東專區
其他
人才招募
中
EN
都市更新
都市更新專區
都市更新消息
都市更新Q&A
都市更新專區
都更法令知識庫
與我們聯絡
都市更新專區
首頁
都市更新
都市更新專區
已完成案件
國泰民生建國大樓
基地位置
無資料
更新範圍
無資料
大事記
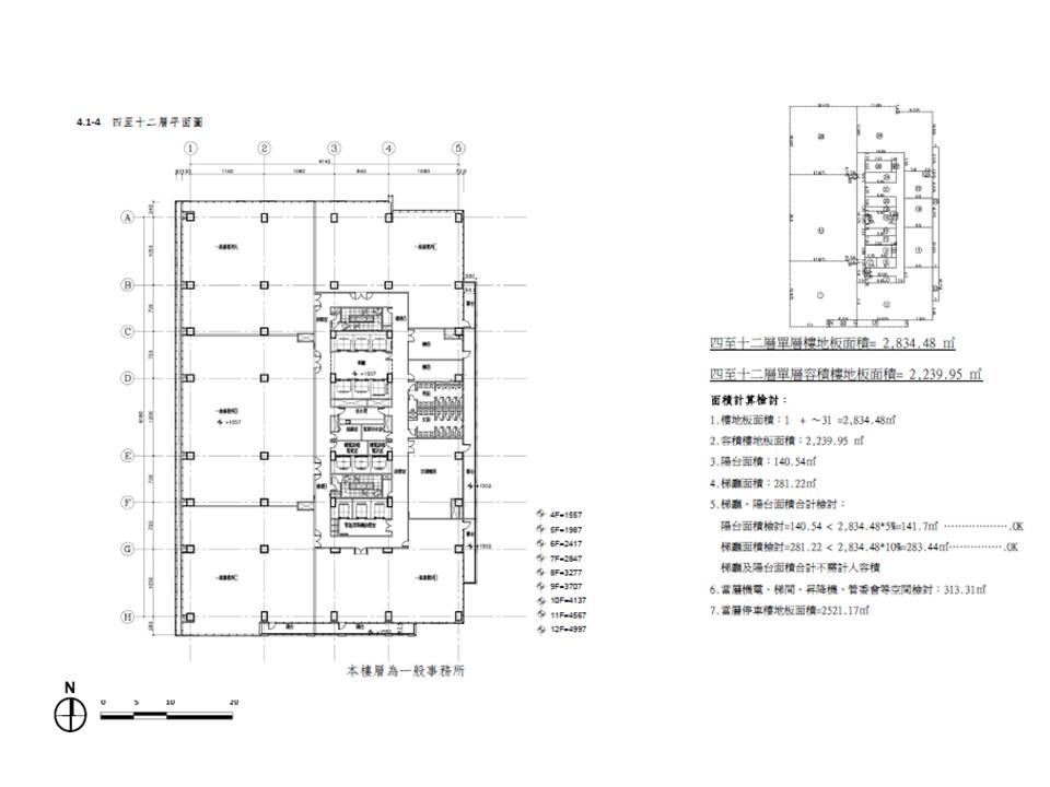
事業計畫內容
相關會議記錄